Панорамные виды на город

ЖК Первомайская 1А

Сердце Тюмени

 
площадь

от 64м2

 
завершение

Дом сдан

 
стоимость

от 16.5 млн.

Проект «1А Первомайская» расположен на пересечении улиц Первомайская, Советская и Сакко. Рядом — Тюменский госуниверситет, филармония, бизнес-центры, школа, торговые галереи. Пешая прогулка до набережной Туры займет 7 минут

Центральное расположение квартала «1А Первомайская» определяет видовые характеристики апартаментов. Из окон видна вся панорама исторического квартала и ключевых мест. У апартаментов последних этажей есть выход на крышу, откуда открывается ещё более красивый обзор города.

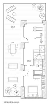
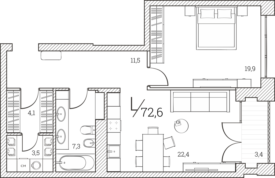
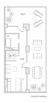
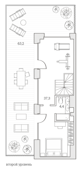
ТИПОВЫЕ ПЛАНИРОВКИ ОБЪЕКТОВ

1 -комнатные

Площадь от 64 м2

от 16.540.000 руб

2-комнатные

Площадь от 72.6 м2

от 20.000.000 руб

Пентхаус 1

Площадь от 310 м2

от 71.720.000 руб

Пентхаус 2

Площадь от 246 м2

от 58.640.000 руб

Пентхаус 3

Площадь от 259 м2

от 60.590.000 руб

ипотечный калькулятор

укажите параметры и рассчитайте ежемесячный платеж

16 600 000 71 800 000
20% 100%
1
1 30
* Расчёты не являются публичной офертой. Конечные условия кредитования определяются банком после рассмотрения заявки
Пожалуйста, укажите телефон
Согласен с политикой конфиденциальности
Необходимо согласие

ЖК Первомайская 1А ЭТО

закрытое сообщество жителей

Коллекция апартаментов на «1А Первомайская» содержит особенные апартаменты с террасами и лоджиями и панорамным видом на город

В домах установлена автономная система управления, которая в моменте синхронизирует всю инженерию и полностью координирует процессы жизнеобеспечения зданий

здания высотой 7, 8 и 9 этажей


  • Узнаваемый и лаконичный фасад отличает дома жилой части квартала. Акцент сделан на простоте и регулярности форм

  • Внутри квартала — полузакрытый двор. В нём соседствуют приватный сад для жителей и городской променад

  • Общедоступный парк, полуприватное фойе и частный сад

ОНЛАЙН КОНСУЛЬТАЦИЯ

получите больше информации о проекте
и задайте свои вопросы

НЕ НАШЛИ ПОДХОДЯЩЕЕ?

Укажите параметры недвижимости, и мы подберем варианты в течение дня бесплатно

Пожалуйста, укажите телефон
Согласен с политикой конфиденциальности
Необходимо согласие
Написать в мессенджер